Direkt zum Inhalt

Bildungszentrum Brückl

Mit dem Abriss der alten Turnhalle, deren Nebengebäude und dem Neubau ergeben sich Potentiale für Freiräume, Erschließung und Verkehrsentflechtung, die auch im Hinblick auf die zukünftige Erweiterung/Adaptierung der Schule einen wesentlichen Mehrwert darstellen.

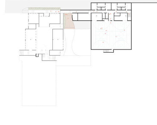
Der annähernd quadratische Baukörper der neuen Sporthalle wird an die östliche Widmungsgrenze angebaut. Zwischen Schule und neuer Sporthalle entsteht ein über 20m breiter Freiraum, der als barrierefreier Zugangsbereich für Kindergartenkinder und Schüler genutzt wird. Die fußläufige Erschließung wird von der motorisierten entkoppelt. Der neu geschaffene Raum bietet Aufenthaltsqualität für wartende Eltern und SchülerInnen vor und nach dem Unterricht oder für die Nutzung als Außenklasse.

Die Sporthalle in Holz-Hybrid-Bauweise wird von der Grundgrenze zurückgesetzt, wodurch sich ein überdachter Vor- und Eingangsbereich bildet. Dieser kann vor und nach einem Match oder einer Schulveranstaltung als erweiterte Aula des Besucherbereichs genutzt werden. Die Versorgung der Besucher erfolgt über das Buffet und die Sanitärräume in der Aula, die einen Zwischenraum von Vorbereich zu Tribüne und Spielfeld darstellt.

Das Spielfeld wird vom Untergeschoss erschlossen, welches alle Nebenräume und die Verbindung zur Schule enthält.

Der Kindergartenbaukörper wird eingeschossig von Süden bis an die Nahtstelle der Vor- und Rücksprünge im Erdgeschoss in die Schule eingeschoben. Er wird ebenfalls über den neuen Freiraum erschlossen. Der Eingang ist separat neben dem Schuleingang unter einem gemeinsamen großzügigen Flugdach positioniert. Klassische Gangflächen werden vermieden, die interne Erschließung des KiGa wird aufgeweitet und stellt zusätzlichen Spielraum zwischen den Gruppen- und Bewegungsräumen dar, in welchem die Küche als zentrales Element integriert ist. Der Freiraum des Kindergartens umspielt großzügig das neue Gebäude und ist direkt aus den Gruppenräumen über vorgelagerte Terrassenflächen zugänglich.

Die Erschließung zwischen den Gebäuden ist ein wesentlicher Teil der Freiraumgestaltung und als Aneignungsfläche vielfältig nutzbar. Der Zugang zu Kindergarten, Schule und Sporthalle ist barrierefrei und durch Baumpflanzungen im Erdkörper großzügig zoniert und versickerungsfähig ausgeführt. Durch die gegenläufige

Rampensituation gibt es eine bespielbare Kante, die neben Kletter- und Parcourelementen unterschiedliche Aufenthaltsbereiche anbietet.

  • Projekt
    Bildungszentrum Brückl - Umbau, Zubau und
    Innensanierung und Neubau einer Sporthalle
  • Ort
    Brückl I Kärnten
  • Nutzung
    Bildung & Sport
  • BGF
    ca 2.500 m²
  • Auftragsart
    Wettbewerb
  • Auftraggeber
    Immobilienverwaltung Schulgemeindeverband St. Veit/ Glan
  • Status
    3. Preis
  • Planungsteam
    formfolgt architekten ZT GmbH
  • Konsulenten
    Freiraum: DI Maria Elisabeth Rief - Ingenieurbüro für Landschaftsarchitektur und Gartenplanung