Direkt zum Inhalt

Bücherdepot Wien

Das Bücherdepot Wien wird von der Paukerwerkstraße über das noch nicht entwickelte südliche Grundstück erschlossen. Vom Norden wird es von der bestehenden terrassierenden S-Bahnlinie begrenzt.

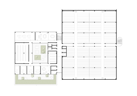
Auf das Grundstück werden 2 kompakte, jedoch in Größe und Form differenzierte Baukörper gesetzt,. Der größere Baukörper wird an die nordöstliche Grenze platziert, der kleinere Baukörper gut sichtbar in Verlängerung der Zuwegung von Süden. Die Grundfläche und Ausdehnung eines Geschosses wird von der Systematik der Rollregallagereinheiten, der zugehörigen notwendigen Gangbreiten und maximal zulässigen Fluchtweglängen bestimmt. Die beiden Bauteile werden von einem gemeinsamen Sicherheitsstiegenhaus über alle Geschosse verbunden.

Der größere 6-geschossige Baukörper stellt die „Lagermaschine“ dar. Zum Norden in Richtung S-Bahn werden vor die Fassade gefaltete, im Zig-Zag verlaufende spiegelnde Wandelemente errichtet. Sie nehmen die Dynamik des Vorbeifahrenden auf und werfen den Blick in Form einer Spiegelung zurück. Durch die Faltung und der Geschwindigkeit des Vorbeifahrens verändert sich der Blickwinkel und die Reflexion stetig. Je nach Standpunkt verändert sich das Bild. Die Worte „Wissen“ und „Macht“ repräsentieren den Ansatz der wissenschaftlichen Lehre im Sinne der Aufklärung, im Dienste der Universität und verweisen auf den Bücher(=Wissens)speicher. Sie können jedoch nicht einfach gleichzeitig erkannt werden, sondern werden erst durch das aufmerksame Betrachten während der Vorbeifahrt voneinander getrennt, freigelegt und entzerrt.

Der zweite Baukörper orientiert sich mit seiner Auskragung zur südlichen Zufahrt. Diese wird durch den Wechsel des Depotvolumens in den Geschossen eins bis drei und des kleineren Bürovolumens im EG und Dachgeschoss erzeugt. Das Depotvolumen wird dabei mit einer Corten-Streckmetallfassade umhüllt, das zurückspringende Erd- und Dachgeschoss mit einer Pfosten-Riegelfassade belichtet. Das Dachgeschoss erhält ein begrüntes innenliegendes Atrium.

Zwischen den beiden Baukörpern entsteht eine zurückgesetzte Fuge, die das Treppenhaus aufnimmt. Sie wird mit einer Pfosten Riegelfassade geschlossen und verbindet die beiden Kuben.

  • Projekt
    Bücherdepot Wien
  • Ort
    1210 Wien
  • Nutzung
    Depot
  • NRF
    ca 12.300m²
  • Auftragsart
    Wettbewerb 2022
  • Auftraggeber
    Bundesimmobiliengesellschaft m.b.H.
    Unternehmensbereich Universitäten
  • Status
    Wettbewerb 
  • Planungsteam
    formfolgt architekten ZT GmbH
    MA: Andreea Danciu BSc
  • Konsulenten
    Statik: TRIAX-Ziviltechniker GmbH
    Haustechnik: Zentraplan Planungsges.m.b.H.
    Brandschutz: HOYER GmbH
    Bauphysik: hacon GmbH 
    Rendering: viksel studio