Direkt zum Inhalt

EFH Mürzzuschlag

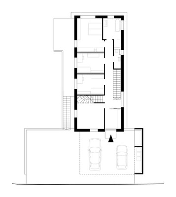
Das Haus bietet eine klare Antwort auf die schwierige topografische Ausgangslage

(Zufahrt von oben; zugleich Südseite).

Ein schmaler, langgestreckter Baukörper entwickelt sich in die Tiefe des Grundstücks; Damit gewinnen die Aufenthaltsräume Distanz zur Straße und bleibt die Besonnung des Grundstücks weitgehend erhalten; Das Haus selbst öffnet sich zur freigehaltenen Westseite hin.

Straßenseitig ist das Carport vorgelagert, welches zugleich als überdachter Zugang dient.                                                               

Ausgeführt als Massivholzbaubau mit Steildach und Holzfassade;

Die Heizung erfolgt mittels Wärmepumpe und Fußbodenheizung.

  • Projekt
    Einfamilienhaus
  • Ort
    Mürzzuschlag | Steiermark
  • Nutzung
    Wohnen
  • NF
    258 m²
  • Auftraggeber
    Privat
  • Status
    Teilfertiggestellt
  • Planung | Ausführung
    2018 - 2020
  • Leistungsphasen
    LPH 2 - 4
  • Planungsteam
    Arch. DI. Michael Tesch
  • Konsulenten
    Holzbauplanung: WOODPLAN GmbH
  • Ausführung
    Holzbau: Luttenberger & Co KG