Direkt zum Inhalt

EFH Rohrendorf

Das Grundstück liegt im Altortsgebiet von Rohrendorf. Im Norden die Straße blickt man Richtung Süden über Felder und Obstgärten auf Stift Göttweig.

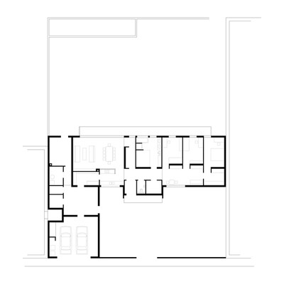
Konzeptionell orientiert sich der Neubau an der geschlossenen Bauweise des abgetragenen Bestands. Der befestigte Innenhof wird von einer Mauer und dem Wohngebäude sowie einem niedriger gehaltenen seitlichen Nebentrakt mit Wirtschaftsraum und Garage eingefasst. Den nach Südwesten orientierten Wohnräumen ist über die gesamte Länge eine Veranda vorgelagert die vom Sonnenschutz eingefasst wird.

Die Küche als zentraler Raum ist offen gestaltet und bietet einen Überblick über das gesamte Haus sowie über Garten und Hof.

  • Projekt
    EFH Rohrendorf
  • Ort
    Rohrendorf | NÖ
  • Nutzung
    EFH
  • NF
    ca. 240 m²
  • Auftraggeber
    Privat
  • Status
    Fertiggestellt
  • Planung | Ausführung
    2002 - 2003
  • Planungsteam
    Arch. DI. Andreas Hradil
    Arch. DI. Michael Tesch