Direkt zum Inhalt

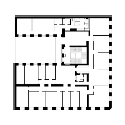
Sanierung und Umbau eines Zinshauses

Im 1. Wiener Gemeindebezirk wird ein Gründerzeithaus entkernt & generalsaniert. Die ersten 3 Geschosse werden durch die weitgehende Auflösung der Tragstruktur (Einbau von Stahlrahmen) zu flexiblen vermietbaren Büroeinheiten in die heutige Zeit transformiert. In den darüber liegenden Geschossen entstehen zeitgemäße großzügige Wohnungen und behalten dabei den Wiener Altbauflair. Die obersten Dachwohnungen bieten mit den eingeschnittenen Terrassen Außenbereiche in der Wohnebene und geben am Dach aufregende Blicke über Wien frei.

  • Projekt
    Sanierung und Umbau eines Zinshauses 
  • Ort
    1010 Wien
  • Nutzung
    Wohnen | Office
  • NF
    3.000 m²
  • Baukosten
    4.60 Mio. EUR
  • Auftraggeber
    Privat
  • Status
    Fertiggestellt
  • Plannung | Ausführung
    12 | 2016 - 11 | 2019
  • Leistungsphasen
    LPH 2 - 5, LPH 7
  • Planungsteam
    Arch. DI. Benno Wutzl
    PLOV Architekten ZT GmbH
  • Konsulenten
    Statik: K&S Ingenieure
    Bauphysik: DI Michaela Pokorny
    Haustechnik: DI Reinhold A. Bacher
    Brandschutz: Hoyer Brandschutz GmbH
    ÖBA: Safaverdi Baumangement
  • Ausführung
    Bauführer: Leyer&Graf und Realbau
    Schlosser: Metallbau Wilhelmer
    Bautischler: Puchegger & Jilg
    Fliesen: Baresch Ofenbau &Fliesenverlegung
    Elektro: Czernohorsky GmbH
    HKLS: Caverion GmbH
  • Fotografie
    Andreas Buchberger