Direkt zum Inhalt

Turnsaalzentrum Kriehubergasse

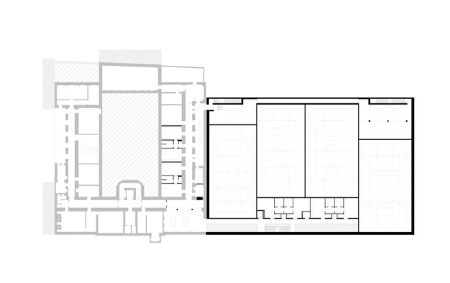
Im fünften Wiener Gemeindebezirk soll ein unterirdisches Turnsaalzentrum mit 4 Sporthallen errichtet werden, welches an die angrenzende Schule angebunden werden soll. Darüber werden die Freisportanlagen sowie der straßenseitige externe Zugang errichtet. Das dem Straßenverlauf folgende Eingangsbauwerk stellt den städtebaulichen Filter zum Stadtraum dar und bringt das Tageslicht in die Untergeschosse der Sporthallenzugänge.

Das Volumen des Projekts entfaltet sich unterirdisch, die Funktionalität und Qualität der Flächen und Räume an der Oberfläche sind jedoch mindestens ebenso relevant und bilden den Ausweis der neuen Sportanlage. Aus der Innenperspektive werden die Sportflächen durch das Gebäude vom Straßenraum abgegrenzt und bieten zudem zusätzliche beschattete Bewegungs- und Ruheflächen außerhalb der Spielfelder. Das Dach des Eingangsgebäudes wird als Stadtterrasse genutzt und bietet als Beobachtungpunkt einen Blick über Park und Sportflächen und den Stadtraum.

  • Projekt
    Turnsaalzentrum Kriehubergasse
  • Ort
    Kriehubergasse 18 | Wien
  • Nutzung
    Sportzentrum
  • NF
    ca 2.800 m²
  • Auftragsart
    Wettbewerb
  • Auftraggeber
    Bundesimmobiliengesellschaft GmbH
  • Status
    Wettbewerb 2020
  • Planungsteam
    formfolgt architekten ZT GmbH
  • Konsulenten
    Freiraum : EGKK Landschaftsarchitektur
    Statik : DI Gunther Mack
    Bauphysik: K2 Bauphysik GmbH
    Brandschutz: Hoyer Brandschutz GmbH
    Haustechnik: Zentralplan GmbH