Direkt zum Inhalt

Volksschule Adnet

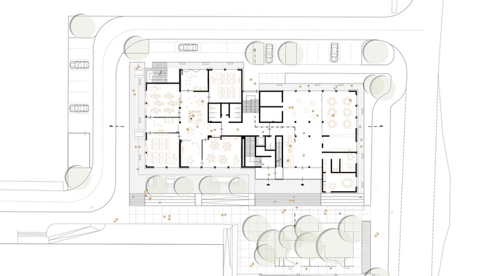
Das bestehende Volksschulgebäude soll an den Anforderungen einer zeitgemäßen Schule herangeführt und erweitert werden. Gemeinsam mit der Mittelschule und dem angeschlossenen Sportplatzareal bildet sie den nördlichen Abschluss des Siedlungsgebietes von Adnet.

Ein zweihüftiger Baukörper, welcher sich entlang der Mittelachse nach Norden bzw. Süden verschiebt reagiert auf die begrenzte Erweiterungsvorgabe (nach Norden, Westen und Osten) sowie die Belichtungssituation für die Mittelschule, indem er sich nach Süden mit einer Freitreppenanlage zur fußläufigen Durchwegung zwischen Volks- und Mittelschule und dem autofreien Vorplatz orientiert.

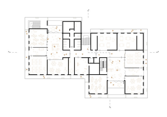
Die gleichstufigen Klassen werden in den beiden Obergeschossen organisiert. Die Betreuungs- und Gruppenräume organisieren sich jeweils rund um den Dorfplatz, wobei der vorgelagerte Außenraum als Freiklasse verwendet werden kann.

Der bestehende konstruktive Kern des alten Schulgebäudes gibt die räumliche Erweiterungsmöglichkeit vor. In der Mitte die neue Erschließung, wird das Gebäude nach Westen und Süden um jeweils eine Klassentiefe erweitert. Über dem 1. Obergeschoss wird ein weiteres Obergeschoss errichtet. Die Zubauten werden in Holzbauweise errichtet.

Um den Baukörper wird ein umlaufender Balkon errichtet, welcher die Schulklassen nach außen vergrößert und sich vor den Dorfplätzen zu Terrassen weitet. Der Balkon beschattet die raumhohen Fenster und bietet Möglichkeiten zur Begrünung.

  • Projekt
    Volksschule Adnet
  • Ort
    Adnet I Salzburg
  • Nutzung
    Volksschule
  • NF
    ca 2.700 m²
  • Auftragsart
    Wettbewerb
  • Auftraggeber
    Gemeinde Adnet
  • Status
    Wettbewerb 2021
  • Planungsteam
    formfolgt architekten ZT GmbH
    MA: Andreea Danciu
  • Konsulenten
    Freiraum: EGKK Landschaftsplanung
    TGA: Zentralplan GmbH