Direkt zum Inhalt

Volksschule Fürstenbrunn

Die Volksschule bildet gemeinsam mit dem Kinderbildungszentrum den neuen nordwestlichen Abschluss zum Areal des Kirchenzentrums Fürstenbrunn und prägt das neu gestaltete Dorfzentrum rund um die Kirche.

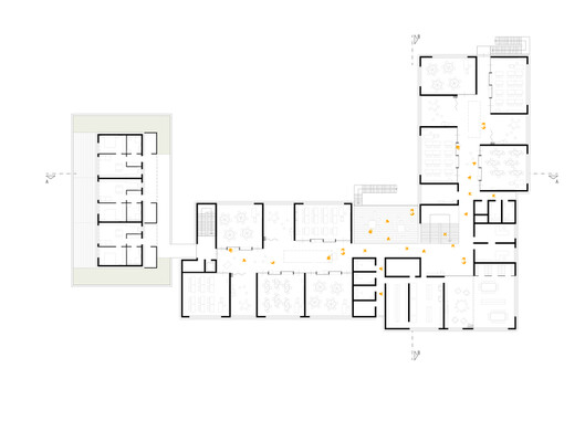
Der Neubau wir als L-förmiger Baukörper formuliert. Er richtet sich am bestehenden Kinderbildungszentrum aus, wodurch die funktionale Zusammengehörigkeit städtebaulich zum Ausdruck gebracht wird. Dabei entsteht gegenüber der Kirche zum nun verkehrsberuhigten Försterweg ein gemeinsamer Vorplatz, welcher die Eingänge von Volksschule und Kinderbildungszentrum verbindet.

Im westlichen Teil des Grundstücks wird neben dem Schulgebäude leicht abgesetzt die freistehende Turnhalle platziert. Der in seiner Grundgestalt L-förmige Baukörper wird durch unterschiedliche Trakttiefen, Verschiebungen der internen Achsen sowie durch Ausschnitte für Freiräume weiter strukturiert.

Der nordöstliche Bauteil definiert die Grenze des im Bereich zwischen Förster- und Salzweg neu positionierten Kinderspielplatzes, welcher unabhängig vom Schulbetrieb zugänglich ist. Zwischen Schule und KiBiz spannt sich der neu organisierte gemeinsam genutzte Freiraum für die Kinder des KiBiz und der Volksschule auf. Sporthalle und Schule definieren den gemeinsamen Schulhof/Schulgarten.

Das Schulgebäude wird vom gemeinsamen Vorplatz über den Windfang erschlossen. Die Schüler gelangen von dort direkt in die Zentralgarderobe, Lehrer und Besucher in die zentrale Aula. Die Aula mit ihrer Freitreppe ist das zentrale Verteilungsgelenk für Erd- und Obergeschoss. Von diesem zentralen Punkt gelangen die Schüler auf kurzem Weg zu den Unterrichtsräumen. Sie führt auch auf kurzem Weg direkt in den Schulgarten.

Im Obergeschoss befinden sich gegenüber dem Treppenaustritt die Arbeitsräume des Lehrpersonals, in Verlängerung gelangen die Kinder in ihren Lernbereich aus je 2 Bildungsraumpaaren mit eingeschobenem  Integrationsraum. Unterschiedliche Raumproportionen und die Verschiebung der Erschließungsachsen spannen den mittigen „Dorfplatz“ als Bewegungs- und Pausenfläche auf.

 

  • Projekt
    Neubau Volksschule Fürstenbrunn
  • Ort
    Fürstenbrunn I Salzburg
  • Nutzung
    Volksschule
  • NGF
    ca 3.650m²
  • Auftragsart
    Wettbewerb
  • Auftraggeber
    Marktgemeinde Grödig
  • Status
    Wettbewerb 2022
  • Planungsteam
    formfolgt architekten ZT GmbH
    MA: Andreea Danciu Bsc